Abitazione indipendente con garage

Casa Indipendente DA ULTIMARE

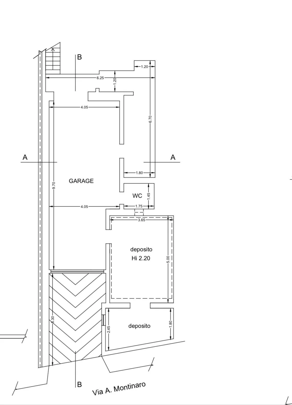
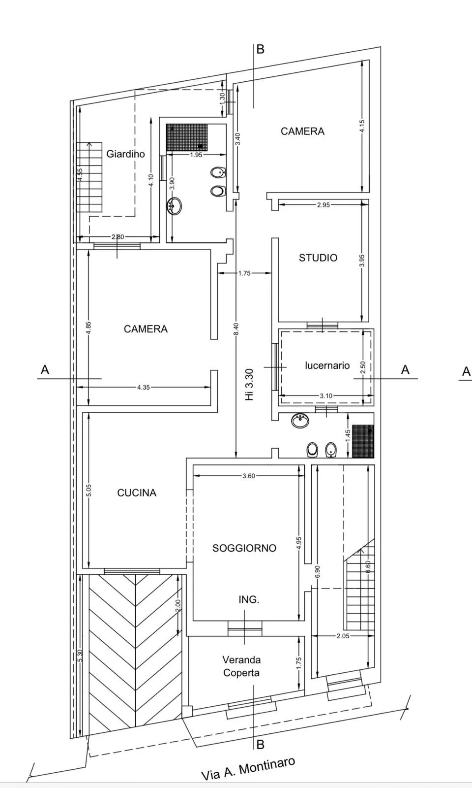
Scopri questa splendida casa indipendente, ideale per chi cerca ampi spazi e tranquillità. Situata in una zona residenziale molto tranquilla, questa proprietà offre la comodità di essere vicina al polo scolastico, perfetta per le famiglie. Con una metratura di 140 mq, la casa dispone di un'accogliente veranda di accesso che conduce a un luminoso living, la cucina è spaziosa e funzionale, la casa vanta tre camere da letto e tre bagni, uno dei quali si trova nel seminterrato, dove troverai anche un ampio garage di 96 mq. All' interno della casa una comoda scala permette un facile accesso al piano seminterrato, un ulteriore scala interna conduce al lastrico solare.

Non perdere l'occasione di personalizzare questa casa secondo il tuo stile! Servita da acquedotto, gas e fogna, questa proprietà è pronta per essere trasformata nella tua nuova dimora. Contattaci per maggiori informazioni e per organizzare una visita!

 

Prezzo

135.000 €


Superficie

120 m²

 
Indietro
Indietro

SAN PIETRO IN BEVAGNA- VIA DEI 4 VENTI

Avanti
Avanti

SAN PIETRO IN BEVAGNA - VIA DEI BERGAMOTTI