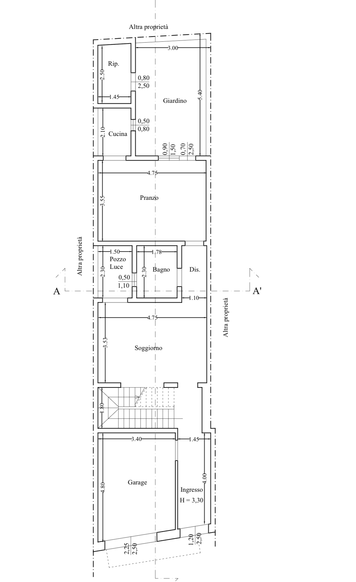
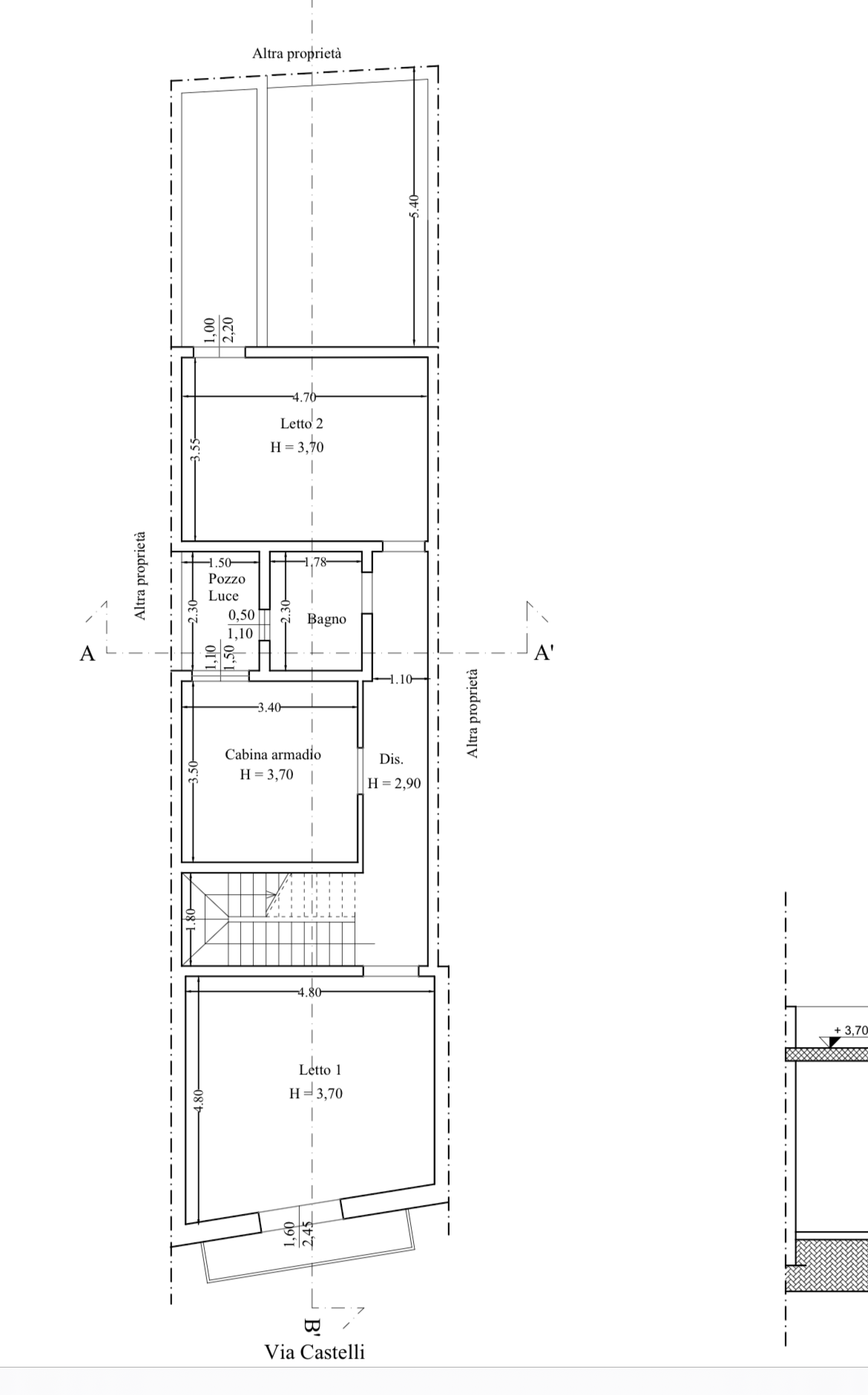
Casa indipendente con garage

Morrone Immobiliare propone in vendita in zona semicentrale, abitazione su due livelli con garage di 15 mq. L'immobile si sviluppa su una superficie complessiva di circa 166 mq ed è strutturato come segue: Piano terra (82mq) ingresso/soggiorno ampio e luminoso, sala da pranzo con cucinotto separato, bagno, spazio esterno di circa 16 mq. Una comoda scala interna conduce al piano superiore (84mq) dove si trovano 3 ampie camere da letto, un bagno un terrazzino e una scala per accedere al lastrico solare, per sfruttare al massimo lo spazio esterno. L'immobile è da ultimare, offrendo l'opportunità di completarlo secondo il proprio gusto e le proprie esigenze. Gli interventi da portare a termine includono: Impianto elettrico, idrico, pavimenti e rivestimenti. L' immobile è allacciato alla rete idrica e fognante. Contattaci per maggiori informazioni o per fissare una visita!

 

Prezzo

86.000 €


Superficie

197 m²

 
Indietro
Indietro

SAN PIETRO IN BEVAGNA - VIA DELLE TUBEROSE

Avanti
Avanti

MANDURIA - VIA CASTROMEDIANO 29